Wijkerbaan Beverwijk
Het bestaande winkelcentrum van ca. 7000m2 was sterk verouderd en sloot stedenbouwkundig en functioneel niet goed meer aan met de omgeving.
Ons bureau maakte het plan voor renovatie, uitbreiding en overkapping van het bestaande winkelcentrum.
Het plan omvat hoofdzakelijk de navolgende onderdelen:
- Dichtzetten van 'losstaande' bouwdelen aan noordzijde door bijbouwen van ca. 1600m2 winkels
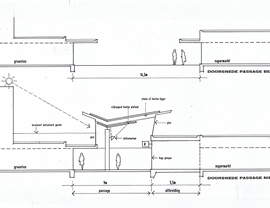
- Versmallen en overkappen van de passage
- Versterken van de hoofdopzet door toepassen van nieuwe gevelfronten t.p.v. de hoofdentrees
- Inrichting van nieuwe pleinen t.p.v. de twee hoofdentrees




